登録物件数
246件
665件
| ![]() | 257400 |
| 価 格 | 1899万円 ★仲介手数料0円!★ | 間取り | 2SLDK | 築年月 | 1970/02 |
|---|---|---|---|---|---|
| 交 通 | JR京浜東北・根岸線鶴見駅 バス(乗車7分 停歩 約1分) 京急本線京急鶴見駅 バス(乗車7分 停歩 約1分) | 建物面積 | 58.32m² | ||
※各画像をクリックすると拡大して表示します
※各画像をクリックすると拡大して表示します

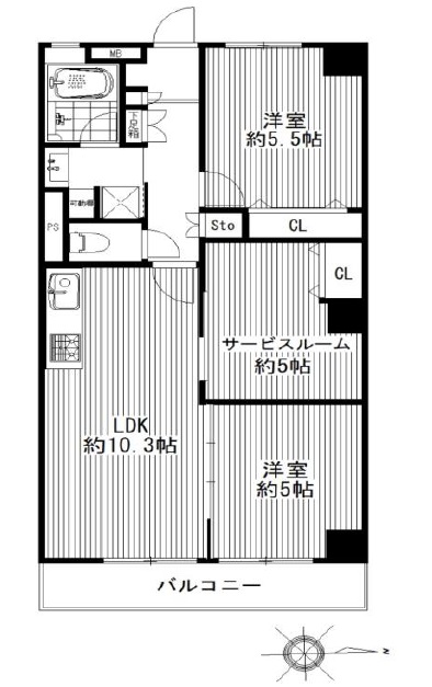
★約58㎡の2SLDK! ★エレベーターあり! ★内装リフォーム済み!(2024年10月) ・システムキッチン交換(浄水器付き、食器洗浄機付き) ・ユニットバス交換(追い焚き機能付き、浴室換気乾燥機付き) ・トイレ交換(ウォシュレット) ・洗面台交換 ・フローリング張替 ・クロス張替 ・フロアタイル張替 ・建具交換 ・照明器具設置 ・給湯器交換 ・洗濯防水パン交換 ・ハウスクリーニング 等 ~周辺施設のご案内~ 《お買いもの》 ○ユーコープ 馬場店:徒歩4分 ○ファミリーマート 東寺尾中台店:徒歩7分 ○まいばすけっと東寺尾中台:徒歩6分 ○スギ薬局 鶴見馬場店:マンション1F 《学校》 ○上寺尾小学校:徒歩9分 ○寺尾中学校:徒歩15分 《病院》 ○めがね橋小児科:徒歩5分 ○平和病院:徒歩13分 《その他の施設》 ○馬場四丁目公園:徒歩4分 ○横浜市寺尾地区センター体育館:徒歩3分 ご興味がございましたらお気軽にお問い合わせ下さい!
| 種別 | 中古マンション | 価格 | 1899万円 ![]() | 間取り | 2SLDK |
|---|---|---|---|---|---|
| 所在地 | 横浜市鶴見区馬場4丁目30-20 エヌケー鶴見コータス | ||||
| 交通 | JR京浜東北・根岸線鶴見駅 バス(乗車7分 停歩 約1分) 京急本線京急鶴見駅 バス(乗車7分 停歩 約1分) | ||||
| 築年月 | 1970/02 | ||||
|---|---|---|---|---|---|
| 建物面積 | 58.32m² | ||||
| バルコニー | 7.56m² | バルコニー向き | 東 | ||
| 建物階数 | 地上10階 | 部屋階数 | 2階 | ||
| 総戸/区画数 | 77 | 部屋番号 | 211 | ||
| 建物構造 | SRC | ||||
| 管理費 | 18000円 | 管理形態 | 自主管理 管理人日勤 | ||
| 駐車場 | 16000円 空無 | ||||
| 引渡/入居時期 | 即時 | 現況 | 空家 | ||
| 用途地域 | 第一種低層住居専 | ||||
| 土地権利 | 所有権 | ||||
| 学区(小学校) | 上寺尾小学校 | 学区(中学校) | 寺尾中学校 | ||
| 仲介手数料 | 無料 | 取引態様 | 仲介 | ||
| 設備・条件 | ※管理費に修繕積立金を含む 2階以上、エレベータ、 | ||||
| 物件番号 | 257400 | ||
|---|---|---|---|
※35年金利0.975%(変動金利)での算出となります。別途諸費用が必要となります。
この物件に関するお問合せは下記のフォームにご記入のうえ、「お問い合わせ内容を送信する」ボタンをクリックしてください。
1営業日以内に担当者より返信させていただきます。

| 住所 | 〒210-0006 川崎市川崎区砂子1丁目2-12 ハレーちとせ502 |
|---|---|
| 電話番号 | TEL 044-201-6130 / FAX 044-201-6131 |
| 定休日 | 水曜日 |
| 代表者 | 山岸 悟 |
| 免許番号 | 神奈川県知事(2)第27615号 |
| 加盟団体 | (社)全国宅地建物取引業保証協会 |
