登録物件数
262件
698件
| ![]() | 268728 |
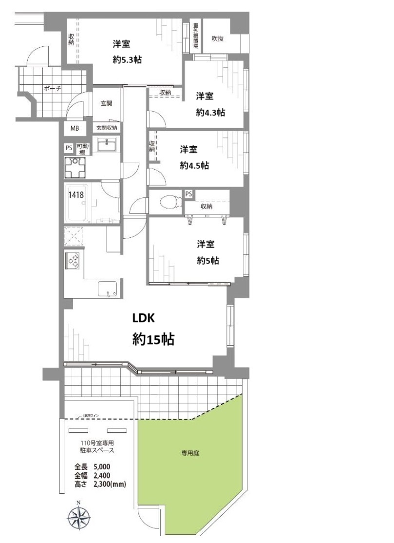
| 価 格 | 4480万円 ★仲介手数料0円!★ | 間取り | 4LDK | 築年月 | 2005/09 |
|---|---|---|---|---|---|
| 交 通 | 京急大師線鈴木町駅 徒歩 約14分 JR京浜東北・根岸線川崎駅 バス(乗車15分 停歩 約3分) | 建物面積 | 73.63m² | ||
※各画像をクリックすると拡大して表示します
※各画像をクリックすると拡大して表示します

★約73㎡の4LDK! ★2005年9月築! ★ペット飼育可! ★エレベーター、オートロック、宅配ボックス有り! ★平置き専用カーポート付き!(8000円/月) ★南東角部屋につき通風良好! ★約11㎡の専用庭付き! ★内装リフォーム済み!(2025年7月) ・システムキッチン交換(浄水器付き、食器洗浄機付き) ・ユニットバス交換(追い焚き機能付き、浴室換気乾燥機付き) ・トイレ交換(ウォシュレット) ・洗面台交換 ・フローリング張替 ・クロス張替 ・フロアタイル張替 ・建具交換 ・照明器具設置 ・給湯器交換 ・洗濯防水パン、水栓交換 ・ハウスクリーニング 等 物件ブログ https://ameblo.jp/iemarunet/entry-12919725571.html 室内動画 https://youtu.be/nf96uKc1O1M ~周辺施設のご案内~ 《お買いもの》 ○セブン-イレブン 川崎大島5丁目店:徒歩3分 ○ライフ川崎大島店:徒歩9分 ○スギ薬局 川崎藤崎店:徒歩9分 《学校》 ○向小学校:徒歩5分 ○富士見中学校:徒歩14分 《病院》 ○総合川崎臨港病院:徒歩1分 ○森田皮膚科クリニック:徒歩3分 《その他の施設》 ○川崎警察署 藤崎交番:徒歩3分 ○大島第一公園:徒歩4分 ご興味がございましたらお気軽にお問い合わせ下さい!
| 種別 | 中古マンション | 価格 | 4480万円 ![]() | 間取り | 4LDK |
|---|---|---|---|---|---|
| 所在地 | 川崎市川崎区中島3丁目15-1 ナイスステージ川崎ブライトピア | ||||
| 交通 | 京急大師線鈴木町駅 徒歩 約14分 JR京浜東北・根岸線川崎駅 バス(乗車15分 停歩 約3分) | ||||
| 築年月 | 2005/09 | ||||
|---|---|---|---|---|---|
| 建物面積 | 73.63m² | ||||
| バルコニー | 8.77m² | バルコニー向き | 南 | ||
| 建物階数 | 地上6階 | 部屋階数 | 1階 | ||
| 総戸/区画数 | 65 | 部屋番号 | 110 | ||
| 建物構造 | RC | ||||
| 管理費 | 14560円 | 管理形態 | 全部委託 管理人日勤 | ||
| 駐車場 | 8000円 空有 | ||||
| 修繕積立金 | 23560円 | ||||
| 引渡/入居時期 | 即時 | 現況 | 空家 | ||
| 用途地域 | 第二種住居 | ||||
| 土地権利 | 所有権 | ||||
| 学区(小学校) | 向小学校 | 学区(中学校) | 富士見中学校 | ||
| 仲介手数料 | 無料 | 取引態様 | 仲介 | ||
| 設備・条件 | 専用庭使用料:350円/月 CATV利用料:330円/月 ペット可能、角部屋、オートロック、エレベータ、宅配ボックス、駐車場有、 | ||||
| 物件番号 | 268728 | ||
|---|---|---|---|
※35年金利0.975%(変動金利)での算出となります。別途諸費用が必要となります。
この物件に関するお問合せは下記のフォームにご記入のうえ、「お問い合わせ内容を送信する」ボタンをクリックしてください。
1営業日以内に担当者より返信させていただきます。

| 住所 | 〒210-0006 川崎市川崎区砂子1丁目2-12 ハレーちとせ502 |
|---|---|
| 電話番号 | TEL 044-201-6130 / FAX 044-201-6131 |
| 定休日 | 水曜日 |
| 代表者 | 山岸 悟 |
| 免許番号 | 神奈川県知事(2)第27615号 |
| 加盟団体 | (社)全国宅地建物取引業保証協会 |
