登録物件数
200件
610件
| ![]() | 273630 |
※各画像をクリックすると拡大して表示します
※各画像をクリックすると拡大して表示します

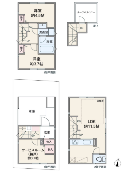
★土地約44㎡建物約67㎡の3階建て2SLDK! ※サービスルームはお部屋として利用できますのでお部屋数は実質3部屋 ★カースペースあり! ★2023年8月築! ★ルーフバルコニー付き! ★設備・仕様…システムキッチン、浴室乾燥機、温水洗浄便座、エアコン、 浄水器、食器洗乾燥機、床暖房…など各種設備が充実しています。 ~周辺施設のご案内~ 《お買いもの》 まいばすけっと北見方3丁目店:徒歩2分 ノジマ 川崎中原店:徒歩7分 サンドラッグ 川崎宮内店:徒歩9分 《学校》 東高津小学校:徒歩13分 東高津中学校:徒歩19分 《病院》 はっとりファミリークリニック:徒歩9分 《その他の施設》 下野毛1丁目公園:徒歩4分 ご興味がございましたらお気軽にお問い合わせ下さい!
| 種別 | 中古戸建 | 価格 | 4290万円 ![]() | 間取り | 2SLDK |
|---|---|---|---|---|---|
| 所在地 | 川崎市高津区下野毛2丁目1−12 | ||||
| 交通 | JR南武線武蔵新城駅 徒歩 約20分 | ||||
| 築年月 | 2023/08 | 新築/中古 | 中古 | ||
|---|---|---|---|---|---|
| 建物面積 | 67.73m² | ||||
| 建物階数 | 地上3階 | ||||
| 建物構造 | 木造 | ||||
| 駐車場 | 有 | ||||
| 引渡/入居時期 | 相談 | 現況 | 空家 | ||
| 地目 | 宅地 | 用途地域 | 準工業 | ||
| 都市計画 | 市街化区域 | ||||
| 土地面積 | 44.81m² | ||||
| 建ぺい率 | 60% | 容積率 | 200% | ||
| 土地権利 | 所有権 | 接道 | 北 幅員約 6.00m(公道) | ||
| 学区(小学校) | 東高津小学校 | 学区(中学校) | 東高津中学校 | ||
| 仲介手数料 | 無料 | 取引態様 | 仲介 | ||
| 設備・条件 | 都市ガス、公営水道、公共本下水、駐車場有、 | ||||
| 物件番号 | 273630 | ||
|---|---|---|---|
※35年金利0.975%(変動金利)での算出となります。別途諸費用が必要となります。
この物件に関するお問合せは下記のフォームにご記入のうえ、「お問い合わせ内容を送信する」ボタンをクリックしてください。
1営業日以内に担当者より返信させていただきます。

| 住所 | 〒210-0006 川崎市川崎区砂子1丁目2-12 ハレーちとせ502 |
|---|---|
| 電話番号 | TEL 044-201-6130 / FAX 044-201-6131 |
| 定休日 | 水曜日 |
| 代表者 | 山岸 悟 |
| 免許番号 | 神奈川県知事(2)第27615号 |
| 加盟団体 | (社)全国宅地建物取引業保証協会 |
