登録物件数
242件
686件
| ![]() | 275268 |
| 価 格 | 3090万円 ★仲介手数料0円!★ | 間取り | 3LDK | 築年月 | 1983/01 |
|---|---|---|---|---|---|
| 交 通 | JR京浜東北・根岸線川崎駅 バス(乗車15分 停歩 約6分) 京急大師線東門前駅 徒歩 約17分 | 建物面積 | 70.95m² | ||
※各画像をクリックすると拡大して表示します
※各画像をクリックすると拡大して表示します

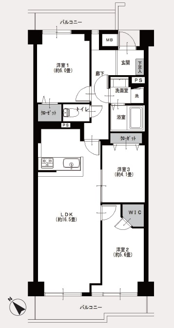
★約70㎡の3LDK! ★総戸数121戸の大規模マンション! ★エレベーター、宅配ボックス有り! ★2025年7月 大規模修繕工事実施済! ★フラット35適合! ★内装リフォーム済み!(2026年2月) ・システムキッチン交換(浄水器付き) ・ユニットバス交換(浴室換気乾燥機付き) ・トイレ交換(ウォシュレット) ・洗面台交換 ・フローリング張替 ・クロス張替 ・クッションフロア張替 ・建具交換 ・照明器具設置 ・洗濯防水パン、水栓交換 等 ~周辺施設のご案内~ 《お買い物》 ●ローソン川崎四谷上町店:徒歩4分 ●コストコ川崎倉庫店:徒歩12分 ●セブンイレブン川崎四谷上町店:徒歩4分 《学校》 ●四谷小学校:徒歩5分 ●南大師中学校:徒歩5分 《病院》 ●AOI国際病院:徒歩19分 ●川崎大師いしまる内科クリニック:徒歩9分 ●後藤医院:徒歩7分 《その他》 ●川崎四谷上町郵便局:徒歩4分 ●四谷上町けやき公園:徒歩1分 ご興味がございましたらお気軽にご相談下さい!
| 種別 | 中古マンション | 価格 | 3090万円 | 間取り | 3LDK |
|---|---|---|---|---|---|
| 所在地 | 川崎市川崎区四谷上町22-4 川崎ロイヤルマンション | ||||
| 交通 | JR京浜東北・根岸線川崎駅 バス(乗車15分 停歩 約6分) 京急大師線東門前駅 徒歩 約17分 | ||||
| 築年月 | 1983/01 | ||||
|---|---|---|---|---|---|
| 建物面積 | 70.95m² | ||||
| バルコニー | 10.08m² | バルコニー向き | 南西 | ||
| 建物階数 | 地上7階 | 部屋階数 | 2階 | ||
| 総戸/区画数 | 121 | 部屋番号 | 211 | ||
| 建物構造 | RC | ||||
| 管理費 | 7630円 | 管理形態 | 全部委託 管理人日勤 | ||
| 駐車場 | 12200-13500円 | ||||
| 修繕積立金 | 16470円 | ||||
| 引渡/入居時期 | 即時 | 現況 | 空家 | ||
| 用途地域 | 第二種住居 | ||||
| 土地権利 | 所有権 | ||||
| 学区(小学校) | 四谷小学校 | 学区(中学校) | 南大師中学校 | ||
| 仲介手数料 | 無料 | 取引態様 | 仲介 | ||
| 設備・条件 | 2階以上、エレベータ、宅配ボックス、フラット35利用可、 | ||||
| 物件番号 | 275268 | ||
|---|---|---|---|
※35年金利0.975%(変動金利)での算出となります。別途諸費用が必要となります。
この物件に関するお問合せは下記のフォームにご記入のうえ、「お問い合わせ内容を送信する」ボタンをクリックしてください。
1営業日以内に担当者より返信させていただきます。

| 住所 | 〒210-0006 川崎市川崎区砂子1丁目2-12 ハレーちとせ502 |
|---|---|
| 電話番号 | TEL 044-201-6130 / FAX 044-201-6131 |
| 定休日 | 水曜日 |
| 代表者 | 山岸 悟 |
| 免許番号 | 神奈川県知事(2)第27615号 |
| 加盟団体 | (社)全国宅地建物取引業保証協会 |
