登録物件数
228件
624件
| ![]() | 276326 |
※各画像をクリックすると拡大して表示します
※各画像をクリックすると拡大して表示します

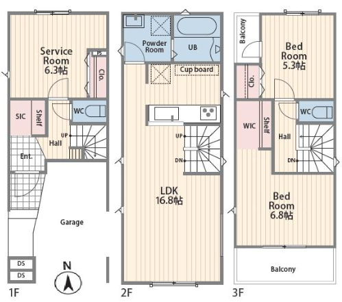
★JR南武線平間駅 徒歩 約8分 ★土地約58㎡!建物約102㎡!の2SLDK ※サービスルームはお部屋として利用できますのでお部屋数は実質3部屋 ★カースペースあり! ★フラット35適合 ★設備・仕様…モニター付きインターホン、浄水器、ウォシュレット ペアガラス、浴室暖房乾燥機付きユニットバス…など各種設備が充実しています。 LDKは約16.8帖と広々。ご家族でゆっくりくつろぎたい方にオススメです。 キッチンは家族との会話やコミュニケーションが取りやすい対面式キッチンです。 小さなお子さんがいる場合でも、リビングに目が届きますから、安心して料理することができます。 ~周辺施設のご案内~ 《お買いもの》 〇スーパー文化堂中丸子店:徒歩6分 〇マルエツ平間店:徒歩9分 〇ウエルシア川崎平間店:徒歩5分 〇ローソン川崎北谷町店:徒歩3分 《学校》 〇玉川小学校:徒歩7分 〇玉川中学校:徒歩5分 《病院》 〇中橋メディカルクリニック:徒歩6分 《その他の施設》 〇新川崎ふれあい公園:徒歩11分 建物完成しました!! いつでも内覧できますのでお気軽にお問い合わせ下さい。
| 種別 | 新築戸建 | 価格 | 6990万円 | 間取り | 2SLDK |
|---|---|---|---|---|---|
| 所在地 | 川崎市中原区市ノ坪682 | ||||
| 交通 | JR南武線平間駅 徒歩 約8分 東急東横線武蔵小杉駅 徒歩 約27分 | ||||
| 築年月 | 2026/02 | 新築/中古 | 新築・未入居 | ||
|---|---|---|---|---|---|
| 建物面積 | 102.67m² | ||||
| 建物階数 | 地上3階 | ||||
| 建物構造 | 木造 | ||||
| 駐車場 | 有 | ||||
| 引渡/入居時期 | 即時 | 現況 | 完成済 | ||
| 地目 | 宅地 | 用途地域 | 第一種低層住居専 | ||
| 都市計画 | 市街化区域 | ||||
| 土地面積 | 58.26m² | ||||
| 建ぺい率 | 60% | 容積率 | 200% | ||
| 土地権利 | 所有権 | 接道 | 南 幅員約 4.21m(公道) | ||
| 学区(小学校) | 玉川小学校 | 学区(中学校) | 玉川中学校 | ||
| 仲介手数料 | 無料 | 取引態様 | 仲介 | ||
| 設備・条件 | 都市ガス、公営水道、公共本下水、駐車場有、南道路、フラット35利用可、 | ||||
| 物件番号 | 276326 | ||
|---|---|---|---|
※35年金利0.975%(変動金利)での算出となります。別途諸費用が必要となります。
この物件に関するお問合せは下記のフォームにご記入のうえ、「お問い合わせ内容を送信する」ボタンをクリックしてください。
1営業日以内に担当者より返信させていただきます。

| 住所 | 〒210-0006 川崎市川崎区砂子1丁目2-12 ハレーちとせ502 |
|---|---|
| 電話番号 | TEL 044-201-6130 / FAX 044-201-6131 |
| 定休日 | 水曜日 |
| 代表者 | 山岸 悟 |
| 免許番号 | 神奈川県知事(2)第27615号 |
| 加盟団体 | (社)全国宅地建物取引業保証協会 |
