登録物件数
242件
673件
| ![]() | 276715 |
| 価 格 | 10380万円 ★仲介手数料0円!★ | 間取り | 4LDK | 築年月 | 2006/08 |
|---|---|---|---|---|---|
| 交 通 | 東急田園都市線溝の口駅 徒歩 約14分 JR南武線武蔵溝ノ口駅 徒歩 約13分 | 建物面積 | 90.46m² | ||
※各画像をクリックすると拡大して表示します
※各画像をクリックすると拡大して表示します

★約90㎡の4LDK! ★2006年8月築! ★総戸数648戸の大規模マンション! ★ペット飼育可! ★オートロック、エレベーター、宅配ボックスあり! ★安心のトリプルセキュリティシステム! ★共用施設充実!(プレイングアリーナ・スカイデッキ・託児所・シアタールーム・ ペット足洗い場・ゲストルーム・サウンドタップ・ゴルフレンジ・ディリーショップ等) ★24時間有人管理!(日中はコンシェルジュサービス・夜間は警備員) ★隣接するKSPから、溝の口駅間のシャトルバあり!(無償) ★24時間ゴミ出し可能! ★北西角部屋につき通風良好! ★内装リフォーム済み!(2026年3月) ・システムキッチン交換 ・ユニットバス交換) ・トイレ交換(ウォシュレット) ・洗面台交換 ・フローリング張替 ・クロス張替 ・フロアタイル張替 ・建具交換 ・照明器具設置 ・洗濯防水パン交換 ・エアコン設置 ・スイッチプレート交換 等 ~周辺施設のご案内~ ≪お買いもの≫ ●ファミリーマート KSP店:徒歩1分 ●マルエツ 第三京浜川崎インター坂戸店:徒歩9分 ●イトーヨーカドー 溝ノ口店:徒歩10分 ≪学校≫ ●久本小学校:徒歩4分 ●高津中学校:徒歩3分 ≪病院≫ ●たかぎ内科クリニック:マンション内 ●KSPクリニック:徒歩1分 ●溝の口胃腸科・内科クリニック:徒歩7分 ≪その他の施設≫ ●かながわサイエンスパーク内郵便局:徒歩1分 ●みどりの大広場:徒歩1分 ご興味がございましたらお気軽にご相談下さい!
| 種別 | 中古マンション | 価格 | 10380万円 | 間取り | 4LDK |
|---|---|---|---|---|---|
| 所在地 | 川崎市高津区久本3丁目14−1 ザ・タワー&パークス田園都市溝の口 | ||||
| 交通 | 東急田園都市線溝の口駅 徒歩 約14分 JR南武線武蔵溝ノ口駅 徒歩 約13分 | ||||
| 築年月 | 2006/08 | ||||
|---|---|---|---|---|---|
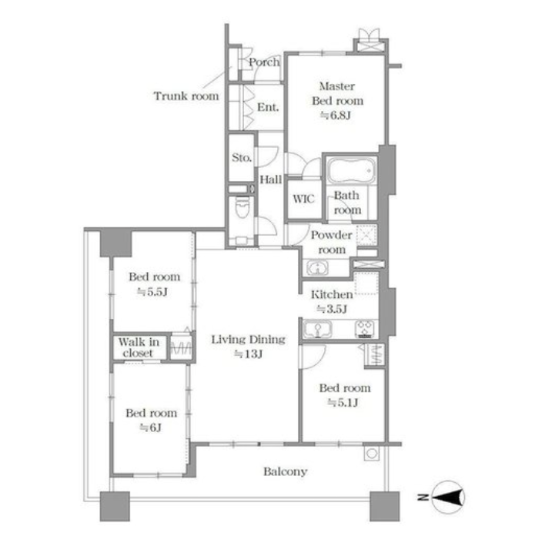
| 建物面積 | 90.46m² | ||||
| バルコニー | 14.80m² | バルコニー向き | 西 | ||
| 建物階数 | 地上32階 | 部屋階数 | 22階 | ||
| 総戸/区画数 | 648 | 部屋番号 | 2201 | ||
| 建物構造 | RC | ||||
| 管理費 | 19400円 | 管理形態 | 全部委託 管理人常駐 | ||
| 駐車場 | |||||
| 修繕積立金 | 25150円 | ||||
| 引渡/入居時期 | 即時 | 現況 | 空家 | ||
| 用途地域 | 工業 | ||||
| 土地権利 | 所有権 | ||||
| 学区(小学校) | 久本小学校 | 学区(中学校) | 高津中学校 | ||
| 仲介手数料 | 無料 | 取引態様 | 仲介 | ||
| 設備・条件 | ペット可能、角部屋、2階以上、トランクルーム、オートロック、エレベータ、宅配ボックス、 | ||||
| 物件番号 | 276715 | ||
|---|---|---|---|
※35年金利0.975%(変動金利)での算出となります。別途諸費用が必要となります。
この物件に関するお問合せは下記のフォームにご記入のうえ、「お問い合わせ内容を送信する」ボタンをクリックしてください。
1営業日以内に担当者より返信させていただきます。

| 住所 | 〒210-0006 川崎市川崎区砂子1丁目2-12 ハレーちとせ502 |
|---|---|
| 電話番号 | TEL 044-201-6130 / FAX 044-201-6131 |
| 定休日 | 水曜日 |
| 代表者 | 山岸 悟 |
| 免許番号 | 神奈川県知事(2)第27615号 |
| 加盟団体 | (社)全国宅地建物取引業保証協会 |
