登録物件数
200件
610件
| ![]() | 275992 |
| 価 格 | 4399万円 ★仲介手数料0円!★ | 間取り | 3LDK | 築年月 | 1981/08 |
|---|---|---|---|---|---|
| 交 通 | JR南武線武蔵中原駅 徒歩 約11分 東急東横線武蔵小杉駅 バス(乗車16分 停歩 約2分) | 建物面積 | 75.60m² | ||
※各画像をクリックすると拡大して表示します
※各画像をクリックすると拡大して表示します

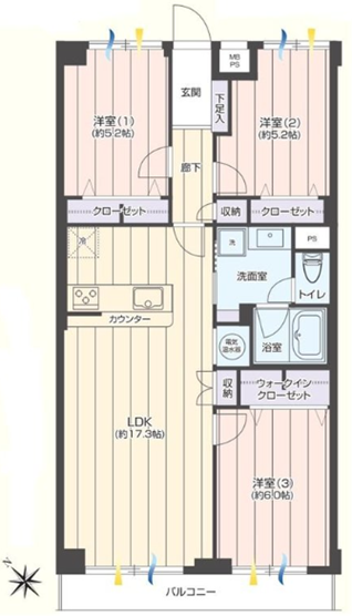
★約75㎡の3LDK! ★エレベーター有り! ★オール電化マンション! ★内装リフォーム済み!(2026年1月) ・システムキッチン交換(浄水器付き、食器洗浄機付き) ・ユニットバス交換(追い焚き機能付き、浴室換気乾燥機付き) ・トイレ交換(ウォシュレット) ・洗面台交換 ・フローリング張替 ・クロス張替 ・フロアタイル張替 ・建具交換 ・照明器具設置 ・電気温水器交換 ・洗濯防水パン交換 ・分電盤交換 ・専有部内配管一部更新 ・ハウスクリーニング 等 ~周辺施設のご案内~ ≪お買いもの≫ ●マルダイ宮内店:徒歩1分 ●ライフ宮内二丁目店:徒歩5分 ●フィットケアデポ上小田中店:徒歩10分 ●まいばすけっと 川崎宮内店:徒歩5分 ●肉のハナマサ 川崎中原店:徒歩8分 ≪学校≫ ●宮内小学校:徒歩7分 ●宮内中学校:徒歩3分 ≪病院≫ ●富士通クリニック:徒歩7分 ●武蔵中原まちいクリニック:徒歩9分 ≪その他の施設≫ ●等々力緑地:徒歩5分 ●川崎上小田中郵便局:徒歩10分 ご興味がございましたらお気軽にご相談下さい!
| 種別 | 中古マンション | 価格 | 4399万円 ![]() | 間取り | 3LDK |
|---|---|---|---|---|---|
| 所在地 | 川崎市中原区宮内4丁目7-3 パークサイド武蔵小杉 | ||||
| 交通 | JR南武線武蔵中原駅 徒歩 約11分 東急東横線武蔵小杉駅 バス(乗車16分 停歩 約2分) | ||||
| 築年月 | 1981/08 | ||||
|---|---|---|---|---|---|
| 建物面積 | 75.60m² | ||||
| バルコニー | 6.30m² | バルコニー向き | 南西 | ||
| 建物階数 | 地上6階 | 部屋階数 | 4階 | ||
| 総戸/区画数 | 66 | 部屋番号 | 408 | ||
| 建物構造 | RC | ||||
| 管理費 | 12700円 | 管理形態 | 全部委託 管理人日勤 | ||
| 駐車場 | 空無 | ||||
| 修繕積立金 | 11420円 | ||||
| 引渡/入居時期 | 即時 | 現況 | 空家 | ||
| 用途地域 | 準住居 | ||||
| 土地権利 | 所有権 | ||||
| 学区(小学校) | 宮内小学校 | 学区(中学校) | 宮内中学校 | ||
| 仲介手数料 | 無料 | 取引態様 | 仲介 | ||
| 設備・条件 | 2階以上、エレベータ、 | ||||
| 物件番号 | 275992 | ||
|---|---|---|---|
※35年金利0.975%(変動金利)での算出となります。別途諸費用が必要となります。
この物件に関するお問合せは下記のフォームにご記入のうえ、「お問い合わせ内容を送信する」ボタンをクリックしてください。
1営業日以内に担当者より返信させていただきます。

| 住所 | 〒210-0006 川崎市川崎区砂子1丁目2-12 ハレーちとせ502 |
|---|---|
| 電話番号 | TEL 044-201-6130 / FAX 044-201-6131 |
| 定休日 | 水曜日 |
| 代表者 | 山岸 悟 |
| 免許番号 | 神奈川県知事(2)第27615号 |
| 加盟団体 | (社)全国宅地建物取引業保証協会 |
