登録物件数
240件
672件
| ![]() | 277139 |
| 価 格 | 6490万円 ★仲介手数料0円!★ | 間取り | 3SLDK | 築年月 | 2026/03 |
|---|---|---|---|---|---|
| 交 通 | JR南武線武蔵中原駅 徒歩 約21分 東急東横線武蔵小杉駅 バス(乗車9分 停歩 約4分) | 建物面積 | 101.02m² | ||
※各画像をクリックすると拡大して表示します
※各画像をクリックすると拡大して表示します

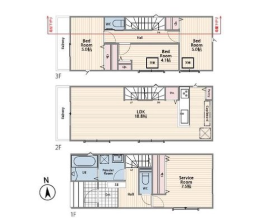
★土地約74㎡!建物約101㎡!の3SLDK ※サービスルームはお部屋として利用できますのでお部屋数は実質4部屋 ★カースペースあり! ★フラット35S適合 ★設備・仕様…モニター付きインターホン、浄水器、食洗機、ウォシュレット ペアガラス、浴室暖房乾燥機付きユニットバス…など各種設備が充実しています。 LDKは約18.8帖と広々。ご家族でゆっくりくつろぎたい方にオススメです。 キッチンは家族との会話やコミュニケーションが取りやすい対面式キッチンです。 小さなお子さんがいる場合でも、リビングに目が届きますから、安心して料理することができます。 ~周辺施設のご案内~ 《お買いもの》 〇マルエツ子母口店:徒歩4分 〇セブンイレブン川崎子母口東店:徒歩3分 〇ライフ子母口店:徒歩5分 《学校》 〇下小田中小学校:徒歩9分 〇中原中学校:徒歩15分 《病院》 〇中原こどもクリニック:徒歩17分 〇山本医院:徒歩9分 《その他の施設》 〇橘公園:徒歩5分 〇川崎子母口郵便局:徒歩6分 物完成しました!! いつでも内覧できますのでお気軽にお問い合わせ下さい。
| 種別 | 新築戸建 | 価格 | 6490万円 ![]() | 間取り | 3SLDK |
|---|---|---|---|---|---|
| 所在地 | 川崎市中原区下小田中5丁目15−29 | ||||
| 交通 | JR南武線武蔵中原駅 徒歩 約21分 東急東横線武蔵小杉駅 バス(乗車9分 停歩 約4分) | ||||
| 築年月 | 2026/03 | 新築/中古 | 新築・未入居 | ||
|---|---|---|---|---|---|
| 建物面積 | 101.02m² | ||||
| 建物階数 | 地上3階 | ||||
| 建物構造 | 木造 | ||||
| 駐車場 | 有 (2台分) | ||||
| 引渡/入居時期 | 即時 | 現況 | 完成済 | ||
| 地目 | 宅地 | 用途地域 | 第一種中高層住居専用 | ||
| 都市計画 | 市街化区域 | ||||
| 土地面積 | 74.83m² | ||||
| 建ぺい率 | 60% | 容積率 | 200% | ||
| 土地権利 | 所有権 | 接道 | 西 幅員約 7.00m(公道) | ||
| 学区(小学校) | 下小田中小学校 | 学区(中学校) | 西中原中学校 | ||
| 仲介手数料 | 無料 | 取引態様 | 仲介 | ||
| 設備・条件 | 都市ガス、公営水道、公共本下水、駐車場有、フラット35利用可、 | ||||
| 物件番号 | 277139 | ||
|---|---|---|---|
※35年金利0.975%(変動金利)での算出となります。別途諸費用が必要となります。
この物件に関するお問合せは下記のフォームにご記入のうえ、「お問い合わせ内容を送信する」ボタンをクリックしてください。
1営業日以内に担当者より返信させていただきます。

| 住所 | 〒210-0006 川崎市川崎区砂子1丁目2-12 ハレーちとせ502 |
|---|---|
| 電話番号 | TEL 044-201-6130 / FAX 044-201-6131 |
| 定休日 | 水曜日 |
| 代表者 | 山岸 悟 |
| 免許番号 | 神奈川県知事(2)第27615号 |
| 加盟団体 | (社)全国宅地建物取引業保証協会 |
